工作時間 周一至周六 8:00-17:00
SJP-870微機消諧保護裝置概述
消諧裝置是集消諧、 PT控制、保護、測量和通訊等多功能于一體的高科技產品。適用于3-66KV的電力系統抑制鐵磁諧振過電壓, 保護高壓熔絲、 電壓互感器免遭損壞的最理想的自動保護裝置。
1.1 主要功能
消諧功能:具有消除電網中的1/3次分頻、1/2次分頻、基頻和3次高頻諧振的功能;
P T控制:PT控制和PT切換并列功能。
測量功能: Uab,Ubc,Uca,Ua,Ub,Uc,3U0,頻率;
通訊功能:采用RS485總線方式, MODBUS通訊協議;
保護功能: PT斷線,過電壓,低電壓,零序接地,零序過壓。
1.2 主要技術特點
采用32位嵌入式ARM Cortex-M3CPU處理器,運算速度快,內部資源豐富簡化硬件電路設計,增強抗干流能力,提高裝置安全性和穩定性;
消諧動作頻率范圍(Hz)1/3次分頻: 15~18;1/2次分頻: 23~27 ;基頻:48~52;3次高頻: 145~162;測量精度:誤差<0.1Hz。
消諧動作電壓(V)3次高頻、基頻: 150±5;1/2次分頻、1/3分頻:30±5;接地:30±5;過電壓:120±5。
重復消諧功能:即諧振波被阻尼消除后,若再次被激發產生,裝置能再次起動予以消除。重復消諧間隔時間為4秒。
人機接口:采用帶高亮度背光的128X64液晶顯示器,菜單化設計,中文菜單顯示。10個高亮度LED指示燈;6個操作按鍵,用于操作菜單和當地參數設置功能; 1個信號復l歸按鍵,專用于本地復l歸故障和告警信號。
記景容量:査看最后的諧振數據和接地數據各300次。累計諧振、接地總次數各999次。
抗干擾能力強:不受電網操作過電壓、雷電過電壓和各次諧波過電壓的干擾影響。設有完善的自檢功能;能及時發現自身缺陷并發出告書信號。
裝置內阻具有開關特性:正常運行期間及在各種非鐵磁諧振過電壓作用下,晶閘管SCR截止,裝置呈高阻狀態,約數百Ka;裝置啟動消譜期間,可控硅全導通(導通角接近180度) ,呈低阻態,約數m0~數拾m0。
裝置自檢:具有完善的自檢能力,發現裝置工作異常將自動發出自檢信號。自檢的項目包括:設備參數、保護定値、開入開出電源、A/D通道、 RAM、 FNRAM、繼電器線圈等。
1.3 產品選型

SJP-870微機消諧保護裝置參數
技術參數



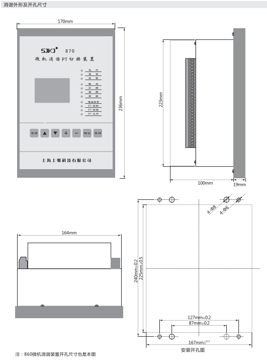
SJP-870微機消諧保護裝置尺寸

礦山冶金
化工、化肥、水泥、紡織
能源、環保
機械電子
火電、水電
造紙、制糖、制藥
市政基礎建設
原料、鋼鐵

